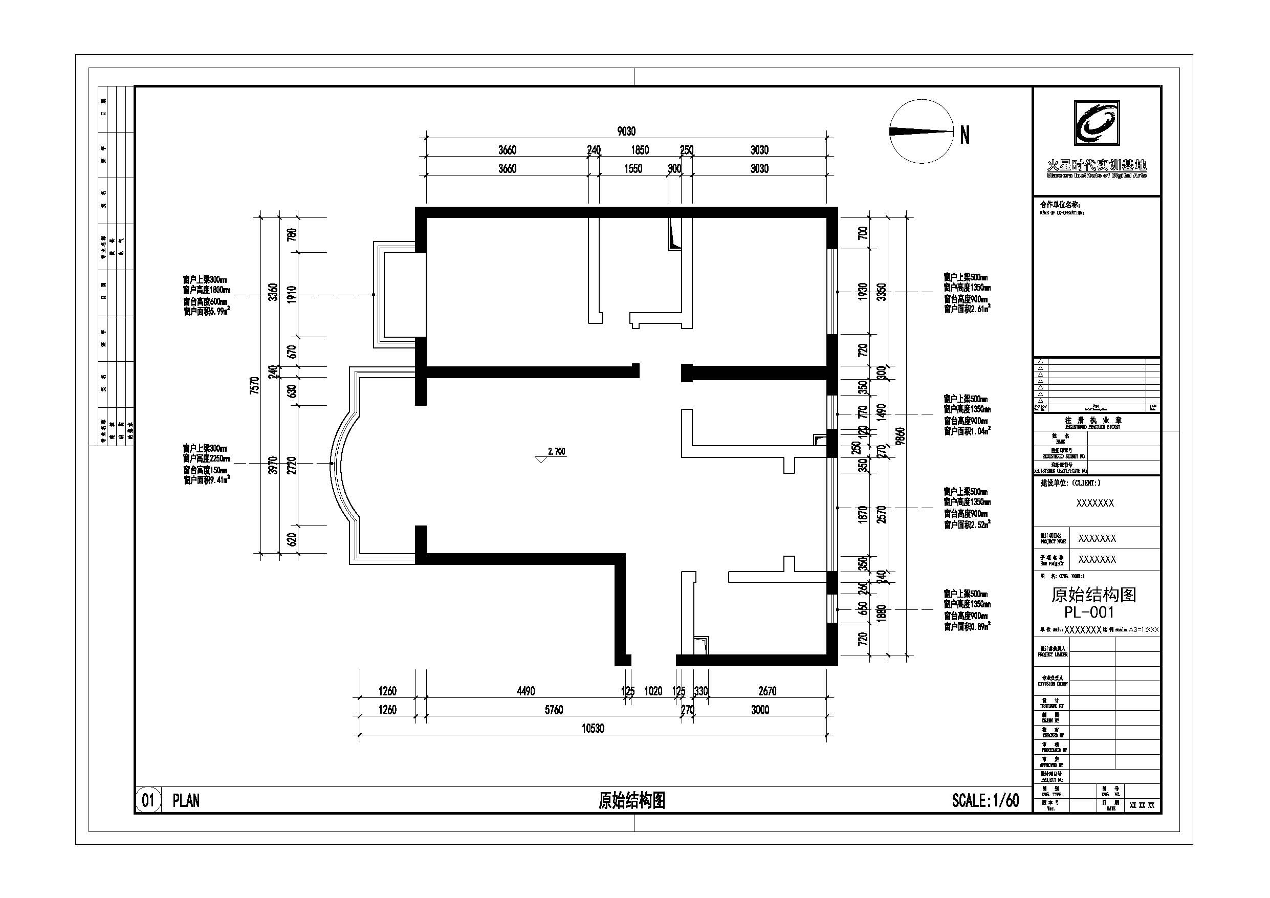
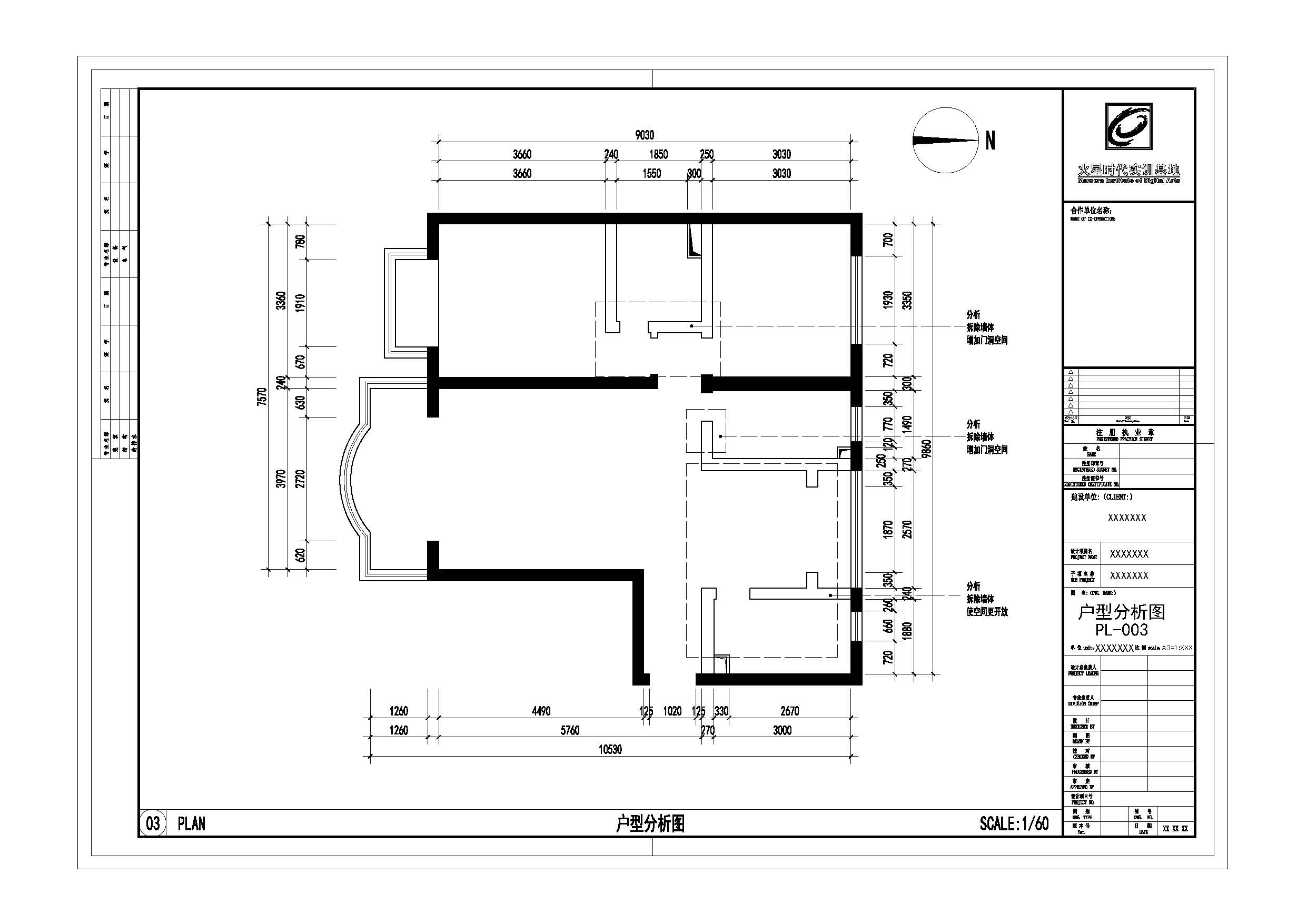
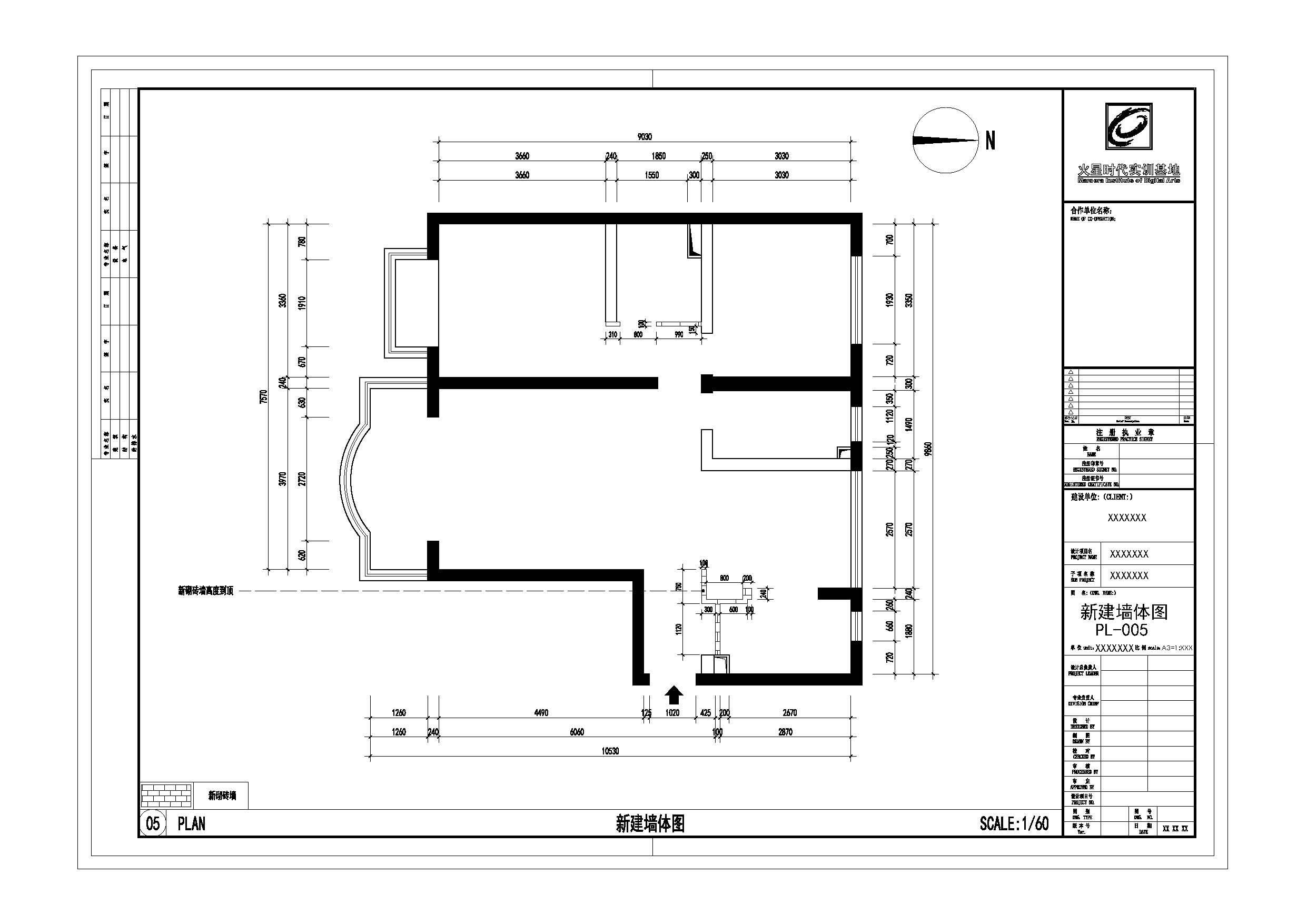
室内高级设计师班1班的五星作品
室内建筑设计 / 室内设计










































大家关注的作品
登录
登录后发表评论